ヘルシータウン新福Ⅱ期 岡山市エリア
月々のお支払い費用例
41,295
~
46,409
円
価格 1,712~1,879 万円
家賃並みのお支払い費用で、新築一戸建てのマイホーム。いま、お住いの家賃と比較してください。
※上記は金利 0.75%で40年払いで計算してます。
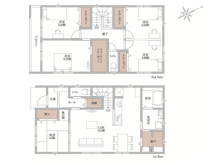
概要
| 所在地 | 岡山市南区新福1丁目 | ||
|---|---|---|---|
| 価格 | 1,712~1,879万円 | ||
| 交通 | 岡電バス「浜野西バス停」徒歩4分 | ||
| 校区 | 福浜小学校/福浜中学校 | ||
| 道路 | 公道:南東約6m、南西約5.4m、北西約3.4~4m | ||
| 総区画数 | 5区画 | 販売区画数 | 5区画 |
| 土地面積 | 152.18m²(約46.03坪)~158.69m²(約48.00坪) | ||
| 土地の権利形態 | 所有権 | 地目 | 宅地,田 |
| 都市計画 | 市街化区域 | 用途地域 | 第1種住居地域 |
| 建ぺい率 | 60% | 容積率 | 200% |
| 上水道 | 公営水道 | 下水道 | 公共下水 |
| 電気 | 中国電力 | ガス | |
| 取引態様 | 仲介 | ||
| その他特記事項 | ※上下水道負担金55万円(税込)本体代金に含まれる。 ※面積確定前につき実測清算有 ※1・2号地セットバック要 ※この土地は、土地媒介契約3カ月以内に株式会社ヘルシーホームと建築請負契約を締結して頂く事を条件として販売します。この期間内に住宅の建築請負契約が成立しなかった場合は、土地売買契約は白紙となり、受領した金額は無利息にて全額お返し致します(契約印紙代を除く) なお、提案図面等は土地の購入者の参考に資するための一例であって、当該提案図を採用するか否かはお客様の自由です。 |
||
| 完成予定 | 取引条件有効期限 | 2026年05月09日 | |
| 情報更新日 | 2026年4月9日 | 次回の更新予定日 | 2026年4月23日 |
| 広告主 | 株式会社 ヘルシーホーム | 住所 | 岡山県岡山市南区富浜町5番10号 |
| 電話番号 | 0120-62-7560 | 免許証番号 | 国土交通大臣(1)第10157号 |
| 所属団体等 |
一般社団法人 日本木造住宅産業協会 岡山県 建築士会 公益社団法人 全国宅地建物取引業保証協会 公益社団法人 岡山県宅地建物取引業協会 公益社団法人 広島県宅地建物取引業協会 |
||
アクセスマップ
周辺環境
好立地の分譲地 毎日の暮らしに便利!快適な周辺環境
-
マルナカ福富店まで徒歩14~15分
1086~1186m
-
ファミリーマート岡山新福店
278~378m
徒歩4~5分
-
土の子保育園まで徒歩12~13分
940~1040m
-
岡山市立福浜小学校まで徒歩16~17分
1219~1319m
-
福浜中学校まで徒歩29~30分
2300~2400m
-
岡山豊成郵便局まで徒歩7~8分
494~594m
メールからのお問い合わせの方
・SSL(暗号化)を適応しており、個人情報が第三者へ漏する事がないようになっておりますので、ご安心してご利用下さい。
・【必須】は記入必須項目です。
Recommend
岡山市南区エリアで探している人は
こちらの土地情報をよく見ています
-

岡山県岡山市南区彦崎
岡山市南区彦崎 売地 527万円
面積:174.18m²(52.68坪)
オススメ
527
万円
詳細を見る -

岡山県岡山市南区片岡
岡山市南区片岡 売地 1,050万円
面積:217.00m²(65.64坪)
オススメ
1,050
万円
詳細を見る -

岡山県岡山市南区妹尾
非公開
面積:非公開
非公開
オススメ
非公開
今すぐWEB会員登録 -

岡山県岡山市南区郡
岡山市南区郡 売地 828万円
面積:173.72m²(52.55坪)
オススメ
828
万円
詳細を見る -

岡山県岡山市南区郡
岡山市南区郡 売地 811万円
面積:169.76m²(51.35坪)
オススメ
811
万円
詳細を見る
未公開土地を今すぐ見る(無料)


